
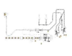
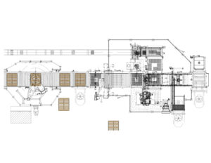
Shown above: packaging line subsystems set up at IPM for Factory Acceptance Testing (FAT) before shipment and onsite commissioning. During FAT key packaging line sub-systems are set-up and with customers’ present to undergo extensive system integration and accumulation testing, before disassembly and shipment – resulting in faster onsite set-up and start-up.
Project Overview
A major cheese producer needed to merge two new block cutting production lines into a single trunk line while preserving the shape, stability, and quality of 40 lb cheese blocks. The operation required precise case handling, continuous product flow, and a palletizing process that met strict labeling and documentation standards, all within a highly constrained footprint.
The Problem
Highly Variable Product and Tight Handling Requirements
The cheese blocks varied in weight and dimensions, which required precise weighing, case packing, and palletizing. Because the blocks could deform if left on conveyors or held in accumulation for too long, the line needed to move product quickly, gently, and predictably.
Complex Palletizing and Documentation Rules
The customer needed:
Limited Space and No Room for Downtime
This entire packaging system had to run in a tight physical footprint. The customer also needed redundancy. If a single machine center went down, product flow had to continue without deformation or waste.
Failure to manage these variables would result in product deformation, increased scrap, production interruptions, and elevated audit risk.

IPM’s Solution
System Architecture and Flow Control
IPM engineered a unified system designed around gentle handling, stable product flow, and downstream accuracy. These requirements defined how product needed to move through the line and how interruptions had to be managed without compromising quality or documentation.
At the start of the line, an IPM-engineered case merge system managed delicate product handling as two inbound streams were combined into a single trunk line. This allowed product flow to remain controlled and predictable before the system transitioned into full downstream automation.

40 LB Block Cheese System Integration
System Components Included:
- 40 LB Block Infeeds
- Case Packers
- Case Labelers
- Palletizing Robot Cell
- Robotic Labeling Cell
- Pallet Wrapper
- Pallet Lift
Redundancy and Continuous Operation
The packaging line was configured for continuous operation with two case packers capable of running the full production rate. A dynamic case routing device, redirected cheese blocks smoothly between packers without mechanical impact, allowing the line to keep running during downtime events and preventing product deformation.
Integrated Handling, Labeling, and Tracking
To support the customer’s handling, labeling, and tracking requirements, IPM integrated:
These elements were engineered to operate as one automated and integrated system rather than islands of automation, ensuring consistent runnability and protection against deformation.
System Validation
Multiple packaging line subsystems underwent Factory Acceptance Testing (FAT) at IPM’s facility to verify coordinated operation prior to installation. This process reduced installation time, minimized risk at startup, and ensured predictable performance once the system was deployed. To complement the risk mitigation achieved during FAT, IPM’s system-specific training empowered onsite personnel to sustain these performance standards, bridging the gap between factory-verified operation and long-term facility success.
The Result
The customer gained a right-sized, automated, reliable block cheese line that protected product integrity, controlled line balance, and maintained stable throughput within a limited footprint. The integrated design improved operator safety, streamlined palletizing accuracy, and generated consistent, audit-ready pallet manifests from the first case to the last. The system now operates as a balanced, uptime-focused line that reliably meets stringent handling and documentation requirements while supporting long-term operational efficiency.
Key Performance Metrics
0%
Increased Line Capacity By
~0%
Reduced Block Deformation By
+0%
Lowered Annual Maintenance Costs By
“At these speeds, uptime isn’t about how fast a single machine can run. It’s about how the system behaves when something changes. Recovery dynamics, interaction between machines, and how quickly the line stabilizes are what ultimately define performance.”
— Brad Breuker, Director of Applications & Business Development, IPM
Ready to Engineer Uptime
Into Your Packaging Line?
Discuss your packaging line requirements with IPM’s engineering team and explore how a unified, system-level approach supports reliable performance, product integrity, and operational clarity.













